Page suivante
Page précédente
Castelnau-le-Lez (34170)

Maison 6 pièce(s) 5 chambre(s) 215 m²

2
705 m²
1
549 000 €
Réf CDP

Unik immobilier vous propose,

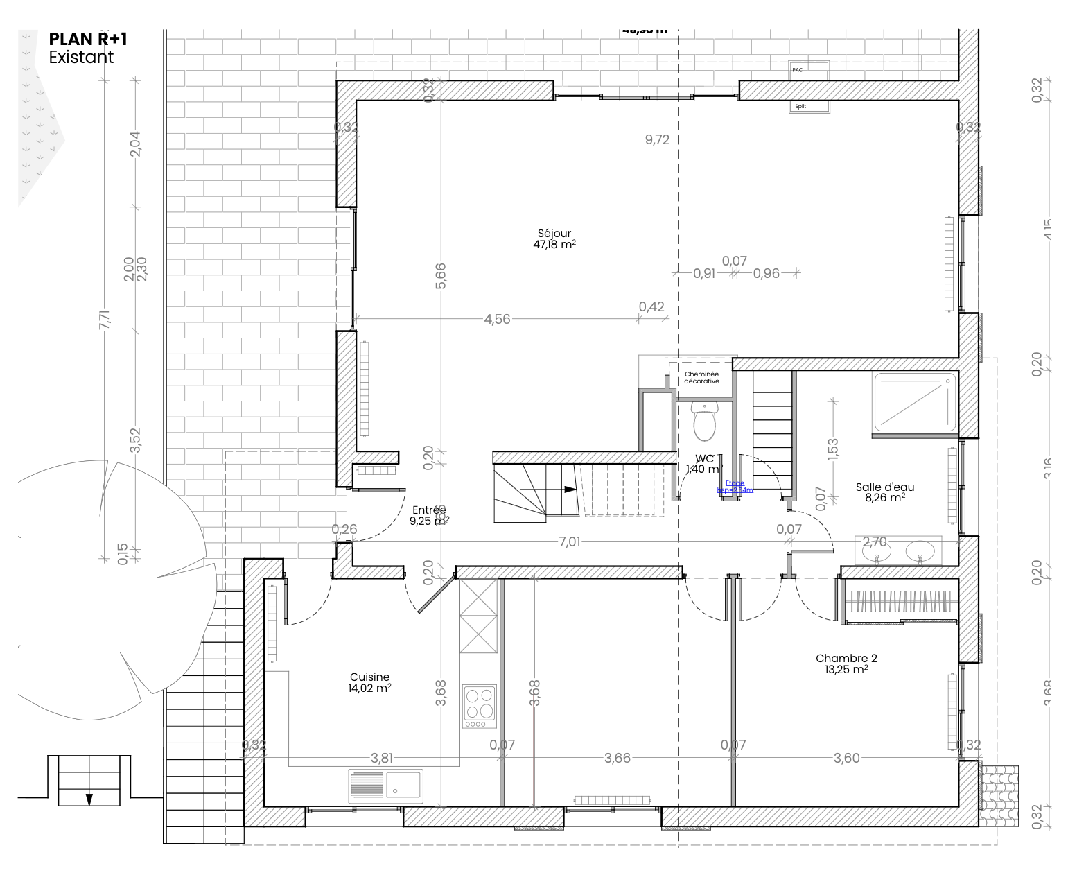
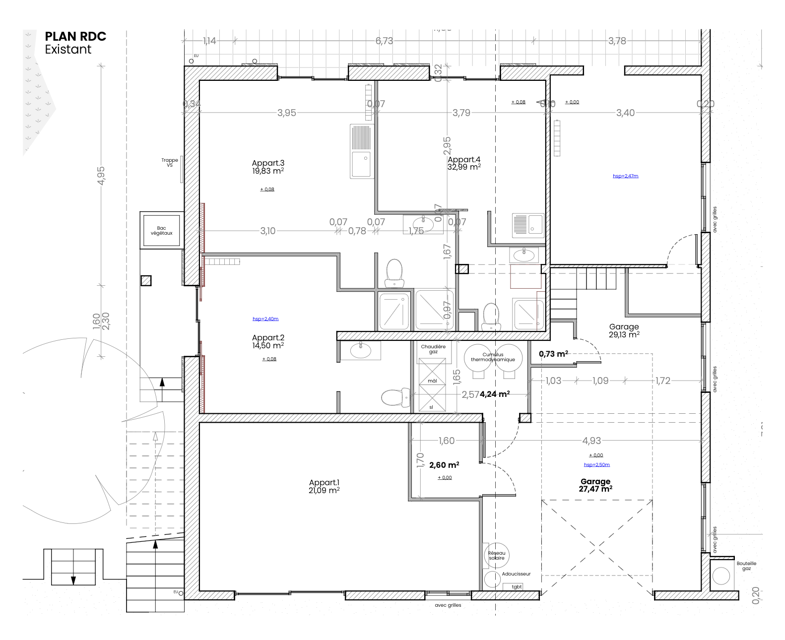
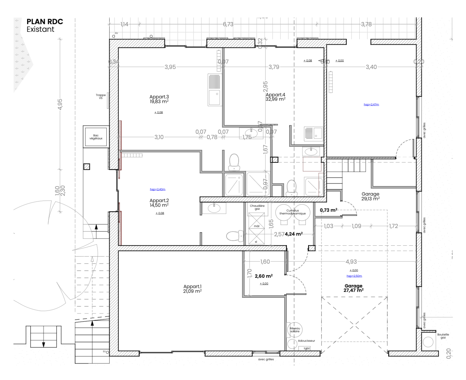
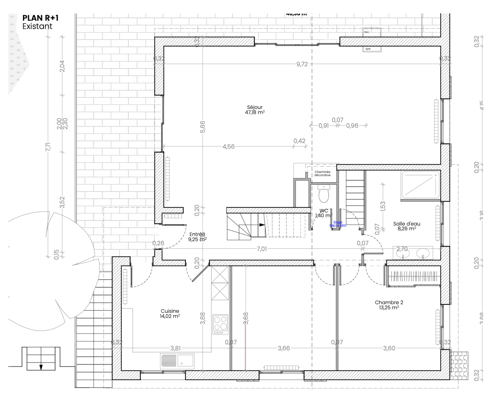
Chemin des pins à Castelnau-Le-Lez, au sein d'un quartier residentiel recherché proche du Parc Laporte. venez découvrir cette maison non mitoyenne, en R+2 d'une surface d'environ 215m2 sur 705m2 de terrain, arboré et avec piscine.

Possibilité de conserver un studio en rdc pour investissement locatif.

Maison offrant un potentiel fou dans un environnement parfait.

Nous disposons des plans, les études et projections par architecte ont été effectuées pour faire de cette maison un lieu de vie idyllique.

L'architecte se tient à votre disposition pour affiner votre projet.

Elle dispose d'une vue arborée très rare en ville.

Proche de toutes les commodités, écoles, collège, Tramway Ligne 2.

Contact O6.45.59.75.45



Bilan énergétique

Diagnostics énergetiques
A propos de ce bien Caractéristiques de ce bien
  • Surface 215 m²
  • carrez 215 m²
  • terrain 705 m²
  • 5 chambre(s)
  • 2 salle(s) de bain
  • construit en 1980
  • cuisine américaine
  • 1 garage(s)
  • exposition Nord-Sud
  • 2 niveau(x)
  • vue Verte
  • terrasse
  • arboré

Financier

Informations financières
Prix de vente 549 000 € Les honoraires d'agence seront intégralement à la charge du vendeur
Taxe foncière annuelle 5 320 €

Simulation

Calcul des mensualités
* Champs obligatoires
Unik Immobilier Agence